東ビル 末広町の賃貸事務所|末広町周辺の賃貸オフィスをお探しならエニスト

PC
現在 0 マイ条件の活用法 お気に入りの活用法

TOPページ > 台東区の賃貸情報一覧 > 東ビル 末広町のその他賃貸事務所!

東ビル 末広町のその他賃貸事務所

お問合わせNO:C4006
賃料
(税別)
626,860円 共益費 / 管理費 48,220円 / - 敷金 / 礼金 - / -
種別 / 構造 事務所 / SRC造(鉄骨鉄筋コンクリート造) 主要採光面 - 保証金 / 敷引 6ヶ月 / -
契約面積 48.22坪 所在階 / 階数 3階 / 10階 築年月 1987年11月 
交通
東京メトロ銀座線 「末広町駅」 徒歩5分
JR総武線 「秋葉原駅」 徒歩9分
JR山手線 「御徒町駅」 徒歩9分
所在地 東京都台東区台東1-31-10   周辺MAP
小学校区
()
中学校区
()
※賃料・共益費は税別表記となります


  • 【建物外観】 
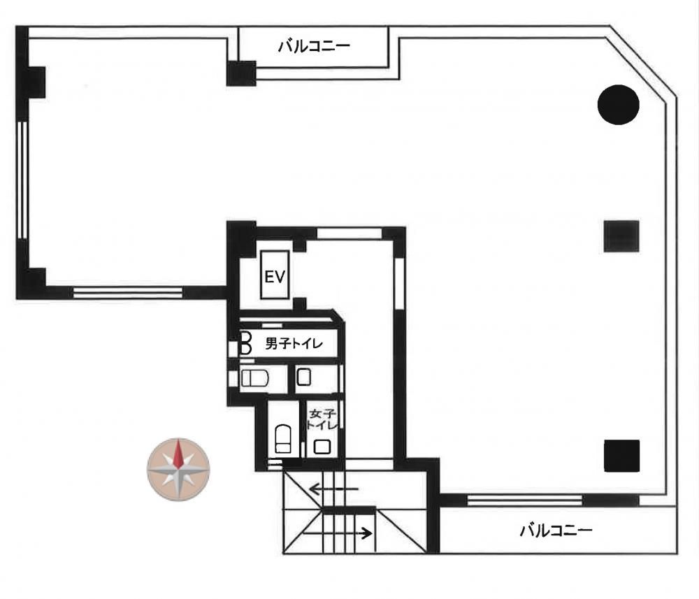
  • 【間取】 
【建物外観】 
写真枚数は 13枚 です。
 

【東ビルについてスタッフからのイチオシポイント!】

東ビル【3階】 “蔵前橋通り”沿い!銀座線『末広町』駅徒歩5分・JR『秋葉原』駅徒歩9分・JR『御徒町』駅徒歩9分!
“新耐震基準”適合物件! “蔵前橋通り”沿い交差点の角地に立地しており視認性の高い建物です!
1階は飲食店が入っております。 陽当たりが良く明るいお部屋です♪
複数の金融機関や飲食店が近くにあり便利な立地です!
諸条件柔軟にご相談できますのでお気軽にお問い合わせください。
末広町・秋葉原・御徒町・浅草橋周辺の賃貸オフィスをお探しならエニストにお任せください。
男女別トイレ・OAフロア仕様です!

-

※お部屋のもっと詳しい内容や入居時期、諸条件のご相談など、ホームページには掲載が間に合わず載せきれていない情報もございます。
気になることが御座いましたらお気軽にメールにてお問い合わせください。

 物件詳細情報

損保 更新料 あり 新賃料 1ヶ月 鍵交換代 -
駐車場 なし 近隣駐車場   契約期間
2年
現況 空家 入居可能日 即入居可 取引態様 媒介
保証会社 お申込み時にご案内いたします。 竣工日 1987年11月 階層 3階/10階
主要採光面 - 面積 48.22坪 間取り その他
現況 空家 入居可能日 即入居可 間取り詳細 -
業種 エレベーター 1基/ 天井高
他初期費用
特 徴
設備
条件・その他  保証人代行:必加入
コメント 東ビル【3階】 “蔵前橋通り”沿い!銀座線『末広町』駅徒歩5分・JR『秋葉原』駅徒歩9分・JR『御徒町』駅徒歩9分!
“新耐震基準”適合物件! “蔵前橋通り”沿い交差点の角地に立地しており視認性の高い建物です!
1階は飲食店が入っております。 陽当たりが良く明るいお部屋です♪
複数の金融機関や飲食店が近くにあり便利な立地です!
諸条件柔軟にご相談できますのでお気軽にお問い合わせください。
末広町・秋葉原・御徒町・浅草橋周辺の賃貸オフィスをお探しならエニストにお任せください。
男女別トイレ・OAフロア仕様です!
備 考 -

 近隣スポット情報

 こちらの物件の空室状況

部屋番号 賃料 管理費 間取り 専有面積 敷金 礼金 お気に入り 物件詳細

 こちらの物件へのお問合せはこちらから

ホームページを見てと伝えてください
株式会社エニスト
〒111-0053
東京都台東区浅草橋一丁目25番7号 シティーコープ浅草橋90
TEL : 03-5823-6106
お問合わせNO:C4006

空室情報の確認や詳細を知りたい方
お問合せはお気軽にお問合せください!


この物件に似た物件をチェック!

  • 賃貸事務所 63.04万円

    御徒町駅 徒歩9分

    130.24u

    KSKビル【2階】末広町・秋葉原・御徒町駅アクセス良好!

  • 賃貸事務所 61.7625万円

    末広町駅 徒歩6分

    163.33u

    御茶ノ水天神ビル【2F】『末広町』駅 徒歩6分 明るいオフィスです!


閲覧した物件の履歴

履歴した物件の一覧を見る


気になったら今すぐ!カンタンお問合せ



お問合せ内容必須
【備考欄】
希望条件・来店希望日・その他質問がございましたらご記入ください。
お客様情報
お名前必須
連絡先必須


※ご記入いただいたメールアドレス宛てに、お問合せ内容の確認メールをお送りいたします。
※Yahoo!メールなどのフリーメールをご利用の場合、迷惑メールフォルダに入る場合があります。
 迷惑メールのフォルダ・設定等をご確認下さい。
メールアドレス
電話番号
FAX(任意)


プライバシーポリシー を必ずご確認ください。内容に同意の上、確認画面へお進みください。

 


▲ページのTOPへ戻る



SHARE!

Instagram Facebook