村井ビル 浅草橋の賃貸事務所|浅草橋周辺の賃貸オフィスをお探しならエニスト

PC
現在 0 マイ条件の活用法 お気に入りの活用法

TOPページ > 台東区の賃貸情報一覧 > 村井ビル

村井ビル 浅草橋のその他賃貸事務所

お問合わせNO:C4004
賃料
(税別)
110,000円 共益費 / 管理費 - / - 敷金 / 礼金 - / 1ヶ月
種別 / 構造 事務所 / RC造(鉄筋コンクリート造) 主要採光面 - 保証金 / 敷引 4ヶ月 / -
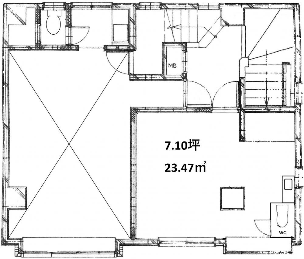
契約面積 7.1坪 所在階 / 階数 2階 / 5階 築年月 1985年1月 
交通
JR総武線 「浅草橋駅」 徒歩2分
都営浅草線 「浅草橋駅」 徒歩5分
JR山手線 「秋葉原駅」 徒歩9分
所在地 東京都台東区浅草橋4-20-2   周辺MAP
小学校区
()
中学校区
()
※賃料・共益費は税別表記となります


  • 【建物外観】 
  • 【間取】 
  • 1階部分
  • 建物入口
  • 前面道路
  • “左衛門橋通り”から1本入った所に立地
  • 『浅草橋駅西口』から徒歩2分!
【建物外観】 
写真枚数は 7枚 です。
 

【村井ビルについてスタッフからのイチオシポイント!】

村井ビル【2階】浅草橋駅西口より徒歩2分!『浅草橋駅西口』から徒歩2分の好立地!! “新耐震基準”適合物件でございます! 
タイル張りの落ち着いた外観! ※お部屋は現況での渡しとなります。
物販店舗もご相談可能!賃料:143,000円(税込)保証金:5ヶ月
2階ですが窓面も大きく視認性も◎
陽当たりが良く明るい室内♪『秋葉原』駅も徒歩9分!
コンビニや金融機関も近くにあり便利な立地です!
初期費用が少なめなので新規開業・独立の方にもお勧めです!
浅草橋周辺の賃貸オフィスをお探しならエニストにお任せください。

-

※お部屋のもっと詳しい内容や入居時期、諸条件のご相談など、ホームページには掲載が間に合わず載せきれていない情報もございます。
気になることが御座いましたらお気軽にメールにてお問い合わせください。

 物件詳細情報

損保 更新料 あり 新賃料 1ヶ月 鍵交換代 -
駐車場 なし 近隣駐車場   契約期間
2年
現況 空き予定 入居可能日 2026年5月下旬 取引態様 専任
保証会社 竣工日 1985年1月 階層 2階/5階
主要採光面 - 面積 7.1坪 間取り その他
業種 エレベーター / 天井高
他初期費用
特 徴
設備 給湯室 / 個別空調 / 新耐震 / 
条件・その他  
コメント 村井ビル【2階】浅草橋駅西口より徒歩2分!『浅草橋駅西口』から徒歩2分の好立地!! “新耐震基準”適合物件でございます! 
タイル張りの落ち着いた外観! ※お部屋は現況での渡しとなります。
物販店舗もご相談可能!賃料:143,000円(税込)保証金:5ヶ月
2階ですが窓面も大きく視認性も◎
陽当たりが良く明るい室内♪『秋葉原』駅も徒歩9分!
コンビニや金融機関も近くにあり便利な立地です!
初期費用が少なめなので新規開業・独立の方にもお勧めです!
浅草橋周辺の賃貸オフィスをお探しならエニストにお任せください。
備 考 -

 こちらの物件の空室状況

所在階 契約面積 賃料(税別) 共益費 礼金 お気に入り 物件詳細
2階 7.1坪 13万円 - 1ヶ月 お気に入り 物件詳細

 こちらの物件へのお問合せはこちらから

ホームページを見てと伝えてください
株式会社エニスト
〒111-0053
東京都台東区浅草橋一丁目25番7号 シティーコープ浅草橋90
TEL : 03-5823-6106
お問合わせNO:C4004

空室情報の確認や詳細を知りたい方
お問合せはお気軽にお問合せください!


この物件に似た物件をチェック!

  • 賃貸事務所 12万円

    浅草橋駅 徒歩3分

    29.81u

    ☆入澤ビル4階401号室 総武線『浅草橋』駅徒歩3分 新耐震基準の物件!☆


閲覧した物件の履歴

履歴した物件の一覧を見る


気になったら今すぐ!カンタンお問合せ



お問合せ内容必須
【備考欄】
希望条件・来店希望日・その他質問がございましたらご記入ください。
お客様情報
お名前必須
連絡先必須


※ご記入いただいたメールアドレス宛てに、お問合せ内容の確認メールをお送りいたします。
※Yahoo!メールなどのフリーメールをご利用の場合、迷惑メールフォルダに入る場合があります。
 迷惑メールのフォルダ・設定等をご確認下さい。
メールアドレス
電話番号
FAX(任意)


プライバシーポリシー を必ずご確認ください。内容に同意の上、確認画面へお進みください。

 


▲ページのTOPへ戻る



SHARE!

Instagram Facebook