秋葉原槇町ビル 末広町の賃貸事務所|末広町周辺の賃貸オフィスをお探しならエニスト

PC
現在 0 マイ条件の活用法 お気に入りの活用法

TOPページ > 千代田区の賃貸情報一覧 > 秋葉原槇町ビル

秋葉原槇町ビル 末広町のその他賃貸事務所

お問合わせNO:A1037
賃料
(税別)
267,300円 共益費 / 管理費 賃料に含む / - 敷金 / 礼金 - / -
種別 / 構造 事務所 / SRC造(鉄骨鉄筋コンクリート造) 主要採光面 - 保証金 / 敷引 8ヶ月 / -
契約面積 17.82坪 所在階 / 階数 8階 / 9階 築年月 1989年6月 
交通
東京メトロ銀座線 「末広町駅」 徒歩3分
JR山手線 「秋葉原駅」 徒歩7分
都営新宿線 「小川町駅」 徒歩9分
東京メトロ丸ノ内線 「御茶ノ水駅」 徒歩10分
所在地 東京都千代田区外神田3丁目3-3   周辺MAP
小学校区
()
中学校区
()
※賃料・共益費は税別表記となります


  • 【建物外観】 
【建物外観】 
写真枚数は 7枚 です。
 

【秋葉原槇町ビルについてスタッフからのイチオシポイント!】

秋葉原槇町ビル【8階】 『末広町』駅徒歩3分!

昌平橋物通り沿い! 角地の視認性の高い立地です!
建物はSRC造で、清掃も行き届いている清潔感のあるオフィスビルになります。
1階には時間貸し駐車場があり来客の際に便利です。
神田周辺のオフィス探しはエニストにお任せください!

※お部屋のもっと詳しい内容や入居時期、諸条件のご相談など、ホームページには掲載が間に合わず載せきれていない情報もございます。
気になることが御座いましたらお気軽にメールにてお問い合わせください。

 物件詳細情報

損保 更新料 あり 新賃料 1ヶ月 鍵交換代 -
駐車場 近隣駐車場   契約期間
2年
現況 空き予定 入居可能日 2026年5月上旬 取引態様 媒介
保証会社 お申込時にご案内いたします。 竣工日 1989年6月 階層 8階/9階
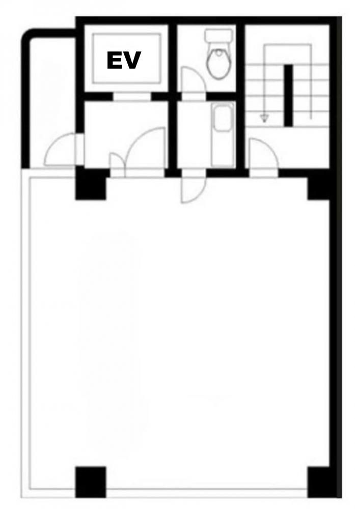
主要採光面 - 面積 17.82坪 間取り その他
業種 事務所 エレベーター 1基/ 天井高
他初期費用
特 徴
  • 3駅以上利用可
設備 トイレ /  エレベーター / 防犯カメラ /  3駅以上利用可 /  機械警備 / 24時間使用 / 個別空調 / 
条件・その他  保証人代行:必加入
コメント 秋葉原槇町ビル【8階】 『末広町』駅徒歩3分!
備 考 昌平橋物通り沿い! 角地の視認性の高い立地です!
建物はSRC造で、清掃も行き届いている清潔感のあるオフィスビルになります。
1階には時間貸し駐車場があり来客の際に便利です。
神田周辺のオフィス探しはエニストにお任せください!

近隣スポット情報

  • 【買う】コンビニエンスストア
    セブンイレブン文京神田明神下店(389m)
  • 【買う】コンビニエンスストア
    セブン−イレブン外神田2丁目妻恋坂店(257m)
  • 【生活】銀行
    三菱UFJ銀行秋葉原支店(257m)
  • 【買う】コンビニエンスストア
    セブンイレブン外神田2丁目妻恋坂店(211m)
  • 【生活】郵便局
    秋葉原UDX内郵便局(440m)
  • 【生活】郵便局
    秋葉原UDX内郵便局(440m)
  • 【買う】コンビニエンスストア
    ローソン末広町駅前店(452m)
  • 【生活】郵便局
    神田郵便局(401m)
  • 【買う】コンビニエンスストア
    セブンイレブン秋葉原駅北店(589m)
  • 【生活】郵便局
    御茶ノ水郵便局(652m)
  • 【買う】コンビニエンスストア
    ファミリーマートTX秋葉原駅店(647m)

 こちらの物件の空室状況

所在階 契約面積 賃料(税別) 共益費 礼金 お気に入り 物件詳細

 こちらの物件へのお問合せはこちらから

ホームページを見てと伝えてください
株式会社エニスト
〒111-0053
東京都台東区浅草橋一丁目25番7号 シティーコープ浅草橋90
TEL : 03-5823-6106
お問合わせNO:A1037

空室情報の確認や詳細を知りたい方
お問合せはお気軽にお問合せください!


この物件に似た物件をチェック!

  • 賃貸事務所 27万円

    秋葉原駅 徒歩2分

    99.17u

    ☆昭和ビル【3A】日比谷線『秋葉原』駅徒歩2分。6線3駅利用可能でアクセス良好!☆


閲覧した物件の履歴

履歴した物件の一覧を見る


気になったら今すぐ!カンタンお問合せ



お問合せ内容必須
【備考欄】
希望条件・来店希望日・その他質問がございましたらご記入ください。
お客様情報
お名前必須
連絡先必須


※ご記入いただいたメールアドレス宛てに、お問合せ内容の確認メールをお送りいたします。
※Yahoo!メールなどのフリーメールをご利用の場合、迷惑メールフォルダに入る場合があります。
 迷惑メールのフォルダ・設定等をご確認下さい。
メールアドレス
電話番号
FAX(任意)


プライバシーポリシー を必ずご確認ください。内容に同意の上、確認画面へお進みください。

 


▲ページのTOPへ戻る



SHARE!

Instagram Facebook