浅草橋のその他賃貸事務所 浅草橋の賃貸事務所|浅草橋周辺の賃貸オフィスをお探しならエニスト

PC
現在 0 マイ条件の活用法 お気に入りの活用法

TOPページ > 台東区の賃貸情報一覧 > 浅草橋のその他賃貸事務所

浅草橋のその他賃貸事務所 浅草橋のその他賃貸事務所

お問合わせNO:C4000
賃料
(税別)
220,770円 共益費 / 管理費 賃料に含む / - 敷金 / 礼金 4ヶ月 / 1ヶ月
種別 / 構造 事務所 / SRC造(鉄骨鉄筋コンクリート造) 主要採光面 - 保証金 / 敷引 - / -
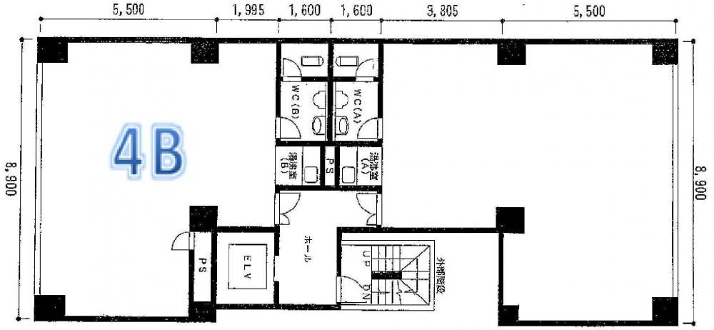
契約面積 22.07坪 所在階 / 階数 4階 / 8階 築年月 1985年1月 
交通
JR総武線 「浅草橋駅」 徒歩2分
都営浅草線 「浅草橋駅」 徒歩2分
JR総武本線 「馬喰町駅」 徒歩6分
所在地 東京都台東区浅草橋1-2-8   周辺MAP
小学校区
()
中学校区
()
※賃料・共益費は税別表記となります


  • 【建物外観】 
  • 【間取】 
【建物外観】 
写真枚数は 6枚 です。
 

【浅草橋のその他賃貸事務所についてスタッフからのイチオシポイント!】

◇マルイチビル 4階B号室 下町情緒あふれる街並みです♪コンクリート打ちっぱなしのオシャレな外観!1階にはヤマト運輸が入居中です!建物裏には神田川が望めます!近くにコンビニやスーパーもあり駅も近く便利です!飲食店も多く、ランチやお仕事終わりの食事には困りません。
ご質問ご要望などお気軽にご相談ください!

浅草橋で人気の物件です!
下町風情を感じる浅草橋の物件です。
窓から神田川が望め、屋形船が浮かんでいるのが見え
夏は特に提灯の明かりが風情を感じさせてくれます。

エントランスなども、手入れの行き届いている物件です。
案内板も一部綺麗にリニューアルしております。

建物に入る際、1段ありますが、建物内はフラットな構造になっております。
荷物を多く運ぶことがある企業様におススメです。
1階にヤマト運輸さんが入居されており、荷物を出すのも楽々です。
来訪者の方の目印にもなります!

浅草橋駅から徒歩2分の距離にあり、JR総武線、都営浅草線の通勤に便利です。
秋葉原方面へも歩いていくこともできます。
中央区馬喰町にも近く、アパレルの卸問屋さんなどに
お取引がある企業さんにもアクセスのしやすさからおススメとなっております。

※お部屋のもっと詳しい内容や入居時期、諸条件のご相談など、ホームページには掲載が間に合わず載せきれていない情報もございます。
気になることが御座いましたらお気軽にメールにてお問い合わせください。

 物件詳細情報

損保 更新料 あり 新賃料 1ヶ月 鍵交換代 -
駐車場 近隣駐車場   契約期間
2年
現況 空家 入居可能日 相談 取引態様 媒介
保証会社 竣工日 1985年1月 階層 4階/8階
主要採光面 - 面積 22.07坪 間取り その他
業種 エレベーター 1基/ 天井高
他初期費用
セキュリティ費用:月額8,800円(税込)
特 徴
設備 給湯室 / 24時間使用 / 個別空調 / 新耐震 / 
条件・その他  保証人代行:必加入
コメント ◇マルイチビル 4階B号室 下町情緒あふれる街並みです♪コンクリート打ちっぱなしのオシャレな外観!1階にはヤマト運輸が入居中です!建物裏には神田川が望めます!近くにコンビニやスーパーもあり駅も近く便利です!飲食店も多く、ランチやお仕事終わりの食事には困りません。
ご質問ご要望などお気軽にご相談ください!
備 考 浅草橋で人気の物件です!
下町風情を感じる浅草橋の物件です。
窓から神田川が望め、屋形船が浮かんでいるのが見え
夏は特に提灯の明かりが風情を感じさせてくれます。

エントランスなども、手入れの行き届いている物件です。
案内板も一部綺麗にリニューアルしております。

建物に入る際、1段ありますが、建物内はフラットな構造になっております。
荷物を多く運ぶことがある企業様におススメです。
1階にヤマト運輸さんが入居されており、荷物を出すのも楽々です。
来訪者の方の目印にもなります!

浅草橋駅から徒歩2分の距離にあり、JR総武線、都営浅草線の通勤に便利です。
秋葉原方面へも歩いていくこともできます。
中央区馬喰町にも近く、アパレルの卸問屋さんなどに
お取引がある企業さんにもアクセスのしやすさからおススメとなっております。

 こちらの物件の空室状況

所在階 契約面積 賃料(税別) 共益費 保証金 償却 礼金 お気に入り 物件詳細

 こちらの物件へのお問合せはこちらから

ホームページを見てと伝えてください
株式会社エニスト
〒111-0053
東京都台東区浅草橋一丁目25番7号 シティーコープ浅草橋90
TEL : 03-5823-6106
お問合わせNO:C4000

空室情報の確認や詳細を知りたい方
お問合せはお気軽にお問合せください!


この物件に似た物件をチェック!

  • 賃貸事務所 22.586万円

    馬喰町駅 徒歩1分

    76.89u

    早川ビル 3階 馬喰町駅徒歩1分!4線4駅使える好立地物件です!!


閲覧した物件の履歴

履歴した物件の一覧を見る


気になったら今すぐ!カンタンお問合せ



お問合せ内容必須
【備考欄】
希望条件・来店希望日・その他質問がございましたらご記入ください。
お客様情報
お名前必須
連絡先必須


※ご記入いただいたメールアドレス宛てに、お問合せ内容の確認メールをお送りいたします。
※Yahoo!メールなどのフリーメールをご利用の場合、迷惑メールフォルダに入る場合があります。
 迷惑メールのフォルダ・設定等をご確認下さい。
メールアドレス
電話番号
FAX(任意)


プライバシーポリシー を必ずご確認ください。内容に同意の上、確認画面へお進みください。

 


▲ページのTOPへ戻る



SHARE!

Instagram Facebook