-
鳥越小堀ビル
皆さまおはようございます。
本日は台東区鳥越にあります一棟ビル「鳥越小堀ビル」をご紹介させていただきます。
現在、入居中の物件になりますが、事前予約の上ご案内は可能となっております。
原則は倉庫用途を希望しておりますが、業種業態につきましてはお気軽にご相談くださいませ。
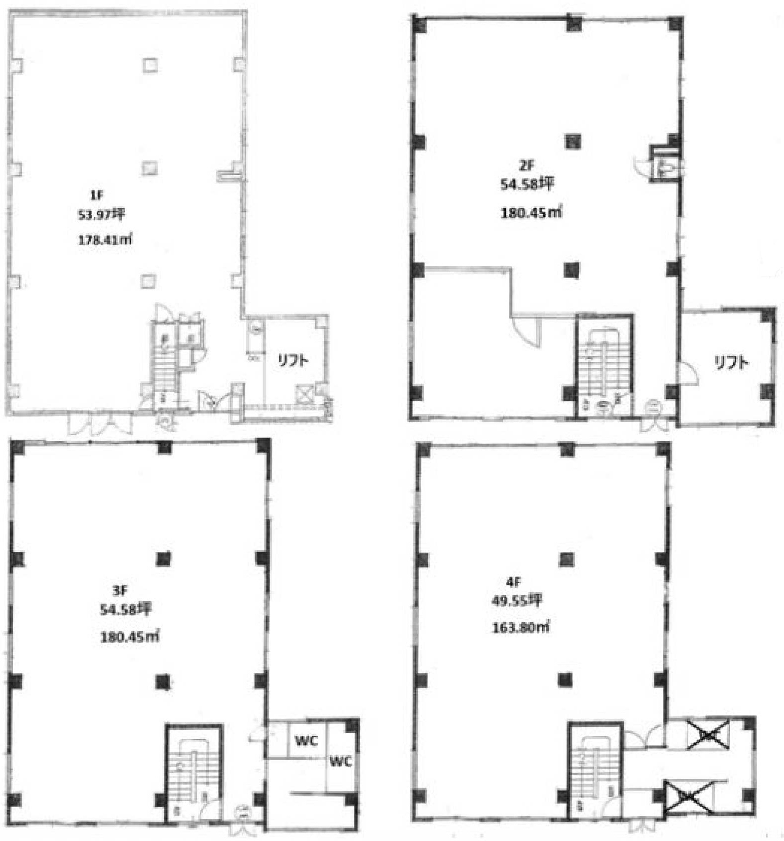
1階~4階で大きさは計212.68坪、703.11㎡となります。
フロアあたりおおよそ50坪ほどの大きさとなります。

広々とした室内

屋上の様子

賃料 165万円(税込) 管理費等 なし 敷金 / 保証金 5ヶ月 / なし 礼金 1ヶ月 使用部分面積 703.11m² 築年月 1962年6月(築63年10ヶ月) 坪数 212.68坪 坪単価 約0.7758万円 築年月 1962年6月(築63年10ヶ月) 種目 貸倉庫 階建 / 階 4階建 / 1階~4階部分 所在地 東京都台東区鳥越2丁目 交通 都営浅草線 / 蔵前駅 徒歩8分
JR総武線 / 浅草橋駅 徒歩9分
都営大江戸線 / 新御徒町駅 徒歩9分
詳細につきましては上記の通りですが、
諸条件のご相談等お気軽にお問い合わせいただければと思います。
浅草橋、蔵前、鳥越周辺で倉庫や事務所をお探しのお客様はエニストにお任せください!









